| Toe'n The Line Custom Pinstriping Box |
|||||||||||||||||||||
![]() |
|||||||||||||||||||||
![]() |
|||||||||||||||||||||
![]() |
|||||||||||||||||||||
![]() |
|||||||||||||||||||||
![]() |
|||||||||||||||||||||
![]() |
|||||||||||||||||||||
![]() |
|||||||||||||||||||||
![]() |
|||||||||||||||||||||
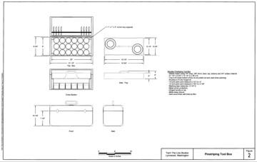
| Features Include: Custom 8-brush holder, Removable tray, Room for 18 1/4-pint cans, Beautiful finish with rubber feet |
|||||||||||||||||||||
| Designed by: Father and Son Built by: Father Finished and Painted by: Son 2004 |
|||||||||||||||||||||
| Home Pinstriping | |||||||||||||||||||||